Venda Terreno Urbano

Descrição
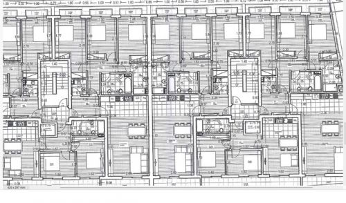
Dois lotes com projecto aprovado e pronto a iniciar, para 8 xT3, 4 xT2 e 4xLojas. Podemos vender ou permutar por apartamentos
- Referência: AGP-1457 - 1778
- Negócio: Venda
- Tipo de Imóvel: Terreno Urbano
- Tipologia: Não Definido
- Ano: 0
- Distrito: Bragança
- Concelho: Mirandela
- Localidade: Mirandela
- Área Útil: 1000 m²
- Área do Terreno: 0 m²
- Preço: Sob Consulta
- Classificação Energética: N/A